Groenpoort: wonen waar het buitenleven altijd bloeit
In het nieuwbouwplan De Groene Boog fase 2 in Groenpoort - Veenendaal gaat Roosdom Tijhuis 12 twee-onder-een-kapwoningen van het woningmodel Ruimzicht bouwen. Een deel van deze woningen ligt aan een groene zone, wat zorgt voor een aangename en rustige woonomgeving. Elke woning is uitgerust met een aangebouwde, gemetselde berging en beschikt over twee parkeerplaatsen op eigen terrein. De woningen hebben een woonoppervlakte van circa 162 m² tot circa 175 m² en een kaveloppervlakte van circa 327 m² tot en met circa 380 m²
Woningmodel Ruimzicht
De twee-onder-een-kapwoningen van woningmodel Ruimzicht maken indruk doordat er optimaal gebruik is gemaakt van alle beschikbare ruimte. Deze twee-onder-een-kapwoning is in de basis 6,84 meter breed en 10,74 meter diep. Door de uitbouw van 60 centimeter aan de straatzijde bij kavel 09 en 14 is deze woning 6,84 meter breed en 11,34 meter diep. Het fraaie accent aan de voorzijde van de woning (bij kavel 21 en 22) zorgt voor extra ruimte en geeft je woning een fraai aanzicht. De ruime en lichte woonkamer aan de voorzijde is de perfecte plek voor een gezellige zithoek. De tuinzijde is ideaal voor je toekomstige droomkeuken. Daarnaast heeft deze woning een aangebouwde, gemetselde berging, erg handig. Wil je meer ruimte in de keuken voor bijvoorbeeld een mooi kookeiland? Kies dan voor de optie van 1,20 of 2,40 meter verlenging. Deze optie kun je verder uitbreiden door bijvoorbeeld te kiezen voor tuindeuren met zijlichten, zo geniet je nog meer van je tuin. Heb je andere ideeën? Vraag onze kopersbegeleider naar de mogelijkheden.
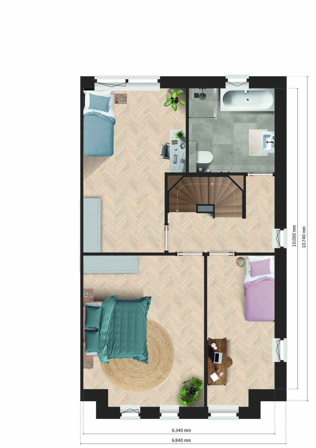
De eerste verdieping van deze woning heeft drie slaapkamers en een badkamer met een ligbad, een douche, een wastafel en een tweede wandcloset. De zolder is een praktische en veelzijdige ruimte. Ideaal als speelplek voor de kinderen, extra slaapkamers of juist als extra bergruimte. Dankzij het dakkapel, bij de kavels 09 tot en met 14, geniet je hier van extra ruimte en een prachtige natuurlijke lichtinval. Op zolder vind je ook de aansluiting voor de wasmachine en een aantal van de technische installaties. Heb je andere ideeën? Vraag onze kopersbegeleider naar de mogelijkheden.
Naast de vele mogelijke opties worden deze woningen al zéér compleet opgeleverd:
- Inclusief keukencheque
- Inclusief badkamer en toilet met sanitair en tegelwerk
- Gasloos wonen door middel van stadsverwarming DEVO
- Inclusief zonnepanelen
- Inclusief vloerverwarming en -koeling op de begane grond en eerste verdieping
- Inclusief aangebouwde, gemetselde berging
- Inclusief twee parkeerplaatsen op eigen terrein
- Natuurinclusief wonen! Meerdere wonigen krijgen een nestkast in de gevel
- Energiezuinige woningen, klaar voor de toekomst
- Prachtige ligging in een groene omgeving, met een deel van de woningen grenzend aan een groene zone of met uitzicht op het water
De Groene Boog: wonen met karakter, leven met gemak



Volg dit project via de nieuwsbrief
Je ontvangt dan steeds de laatste ontwikkelingen in jouw mailbox.
Volg dit project via Facebook
Volg De Groene Boog fase 2 op Facebook om op de hoogte te blijven van de laatste ontwikkelingen en updates.
Volg via Facebook