De Burgt III: waar luxe, comfort en duurzaamheid samenkomen
Goed nieuws in Barneveld. Met woningbouw in het nieuwbouwplan De Burgt III wil Barneveld de lokale en regionale woningkrapte tegengaan. De ontwikkeling van De Burgt kent een lange geschiedenis. Een groot deel van De Burgt is inmiddels gerealiseerd. De ambitie voor de nieuwe woonwijk De Burgt III vloeit voort uit het oorspronkelijke stedenbouwkundig plan 'Barneveld De Burgt' van 1996. Samen met de gemeente Barneveld is Roosdom Tijhuis in gesprek over een te realiseren woonprogramma voor het themagebied De Burgthoven.
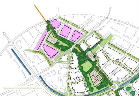
De Burgt III wordt gerealiseerd ten zuiden van de kern van Barneveld. Het plangebied wordt globaal begrensd door de Nederwoudseweg aan de noordzijde, de Lunterseweg aan de oostzijde, de Scherpenzeelseweg aan de zuidzijde en de Burgemeester Aschofflaan aan de westzijde. Het plangebied is gelegen op de overgang tussen het dorp en het buitengebied en bestaat grotendeels uit weide en akkerland.
De Burgt III kent vier themagebieden: Woudse Erven, De Burgthoven, De Lanen Oost en De Nederwoudse Brinken. Het themagebied De Burgthoven is het noordelijk deel van het plangebied dat wordt ingesloten door de Nederwoudseweg, Valkappel en de Sterappel. Binnenin het plangebied ligt een bestaand erf welke wordt geïntegreerd door het een centraal deel van het 'hof' te maken. Het beoogde woonprogramma zal bestaan uit sociale huurwoningen, betaalbare koopwoningen en vrije sector koopwoningen.
Meer dan 90 jaar bouwt Roosdom Tijhuis aan woonwensen, dat betekent: plekken creëren waar herinneringen worden gemaakt, families samenkomen en dromen worden waargemaakt. Dit willen wij nog heel lang blijven doen!
Blijf op de hoogte
Blijf op de hoogte van deze ontwikkeling door je hieronder in te schrijven voor de nieuwsbrief.
Op dit moment kunnen wij je nog niet verder informeren over de planvorming, zodra er meer nieuws is ten opzichte van bovenstaande dan lees je dat op deze website en krijg je als jij je hebt ingeschreven voor de nieuwsbrief toekomstige updates over deze ontwikkeling toegestuurd middels de nieuwsbrief. Wij verzoeken je om niet te bellen voor meer informatie aangezien deze dus nog niet voorhanden is.




Volg dit project via de nieuwsbrief
Je ontvangt dan steeds de laatste ontwikkelingen in jouw mailbox.